Prestavba papierne na moderný podkrovný dom

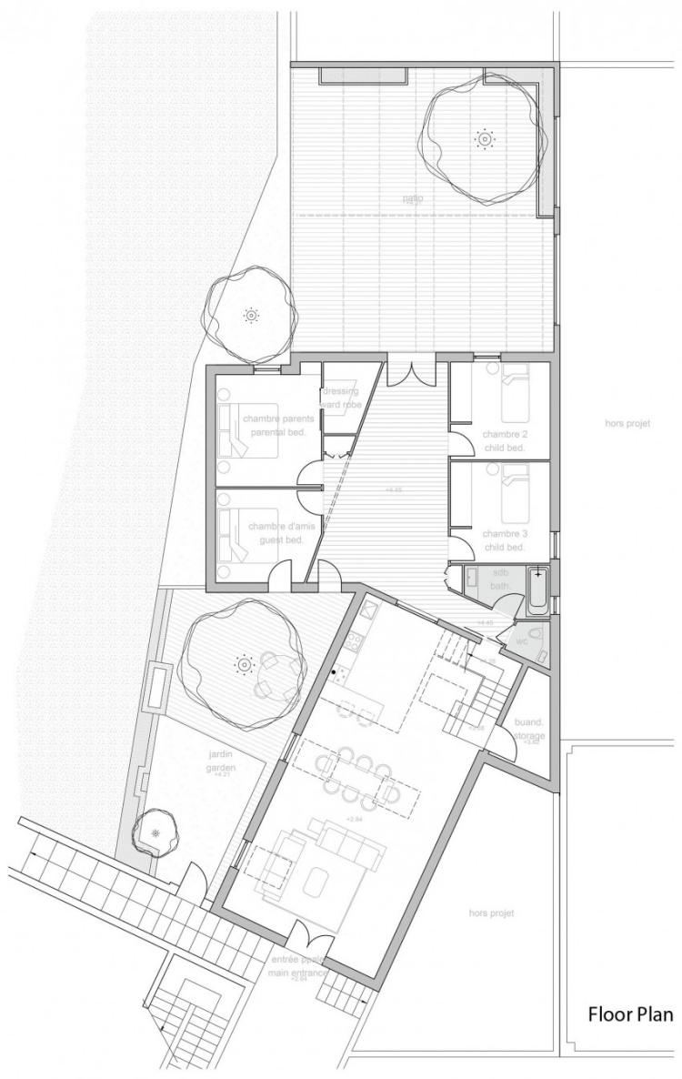
Projekt Labahou zahŕňa prestavbu papierne na a moderný podkrovný dom Realizovala ju francúzska architektonická firma Planet Studio v roku 2012 s rozpočtom 100 000 EUR. Dom s rozlohou 170 m² sa nachádza v Anduze, malom meste v departemente Gard v južnom Francúzsku.
Prestavba na moderný podkrovný dom

Majitelia získali celý areál bývalej papierne, ktorá bola v prevádzke do 90. rokov minulého storočia. Celková plocha viac ako 1 300 m². Stál dlho prázdny alebo slúžil ako úložný priestor, ale majitelia mali túžbu priestor opäť oživiť. Zariadenie je v štýle typického domu Cevennes.
Zariadenie bytu v modernom podkrovnom dome

Prvým problémom bolo určenie polohy a hraníc domu: stavebná plocha 1 300 m² na 170 dostupných metroch štvorcových. Voľba nebola taká jednoduchá, pretože nehnuteľnosť sa kvôli topografii oblasti nachádzala medzi frekventovanou cestou na východe a kopcom na západe. Majitelia si vybrali miesto, ktoré si bude vyžadovať menej ťažkej práce.
Nábytok kombinuje vintage a moderný

V tomto modernom podkrovnom dome nie sú všetky prvky rovnako veľké, ako sú tradične v podkroví, ale dizajnérsky tím chcel vytvoriť prepojenie medzi rôznymi časťami, či už vo vnútri alebo vonku. To bolo možné vytvorením zväzku, ktorý predstavoval skutočný stred domu.
Kuchynský kút pod oceľovou konštrukciou

Z hlavného obývacieho priestoru je vstup do záhrady, na terasu, z izieb a medziposchodia. Vonku je polokrytá terasa a záhrada, ktorá napodobňuje štýl stredomorských záhrad. Pri stavbe bol objavený vodný zdroj, ktorý umožnil postaviť studňu. Bol to chýbajúci kľúč, aby ste si mohli vychutnať krásne dni v tomto idylickom prostredí.
architektonická kancelária Planet Studio
Oceľové schody s drevenými stupňami

viditeľné krokvy

Miestnosti do seba zapadajú

Vstup na vonkajšiu terasu











