Návrh obytného domu v Melbourne zostavený z rôznych budov

To Návrh bytového domu v Richmonde bolo Melbourne pri architektonickom štúdiu Andrew Maynard Architects navrhnuté a nazvané konceptom HOUSE House. Dom bol zostavený z dvoch samostatných budov v rôznych architektonických štýloch a ide o skutočne zaujímavý koncept. Tehlový dom s viktoriánskou fasádou bol postavený ako prvý a drevený dom vedľa neho bol postavený ako prístavba..
Návrh bytového domu ako zmes rôznych architektonických štýlov

To Návrh bytového domu od Andrew Maynard bol zostavený z rôznych materiálov, čo dodáva fasáde zaujímavý vzhľad. Staršia časť je tehlová budova, ktorá má elegantnú fasádu v štýle vintage pre väčšie bohatstvo. Krásna biela veranda je v kontraste k hrubej tehlovej krytine. Drevená budova vedľa bola neskôr prestavaná, pretože koncept domu HOUSE House bol určený ako obytná budova pre dve generácie.
Kombinácia dreva a tehál v jednom

Návrh bytového domu s vertikálnym plánovaním interiéru

V interiéri domu boli úspešne kombinované aj rôzne materiály. Je jasné, že to Návrh bytového domu bol naplánovaný a rozšírený vertikálne, čo je pre väčšinu domov v Austrálii dosť netypické. Podlahová krytina z prírodného dreva vytvára teplú a útulnú atmosféru. Kovové točité schody spájajú všetky úrovne domu a poskytujú príjemný retro vzhľad. Vnútorné nádvorie bolo tiež oddelené posuvnými dverami, ktoré je možné otvoriť, keď je príležitosť.
Kovové schody v točitom tvare spájajú podlahy


Kuchynský ostrovček s kovovou platňou

Obývacia izba kombinuje rustikálny a retro vzhľad

Moderný dizajn kúpeľne

Útulné vnútorné nádvorie na relaxáciu


Posuvné dvere delia dvor na dve časti

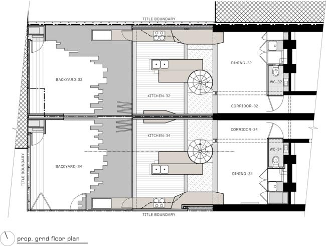
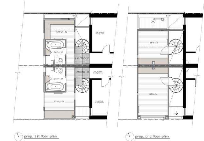
Architektonické plány domu

