Moderný dvojdom so strešnou terasou ponúka pohodlné bývanie

Táto rezidencia 2 v 1 sa nachádza v meste Fitzroy na predmestí Melbourne vo Victorii v Austrálii moderný dvojdom ktorý pozostáva z dvoch rodinných domov postavených spoločne a navrhnutých jednotne. Dom ponúka komfortné bývanie na 3 podlažiach a je stále na predaj.
Moderný dvojdom v Melbourne

Koncept pre moderný dvojdom vychádzal zo štýlu Bauhaus. Každý z dvoch domov má 3 spálne, 2 kúpeľne, balkón. K dispozícii je tiež priestranný obývací priestor, varenie a jedálenský kút v podkroví, ako aj moderná strešná terasa a vnútorné nádvorie. Fasáda bola navrhnutá s maximálnou transparentnosťou.
Moderný dvojdom s vnútorným dvorom

Kombinácia prírodných farieb dodáva každej miestnosti elegantné a veselé kúzlo. Vďaka bielej základni zostáva obytný priestor napriek tmavej farbe podlahy jasný a má aktivačný a povzbudzujúci účinok.
Moderný dvojdom so strešnou terasou ponúka skvelé bývanie

Ako základný tón sa používa teplá hnedá. Hnedá prináša hĺbku, teplo a útulnosť a ponúka dokonalú scénu pre silné kontrasty. Nábytok je skôr decentný, v neutrálnych tónoch. Jednotlivé kúsky, pútavé pohľady alebo prezentácie vnesú do domu farby a dodajú miestnosti osobitosť. Interiéroví dizajnéri priniesli do domu rustikálny nádych s doplnkami a dekoráciami.
Moderný dvojdom – rekonštrukcia

Tehlové múry sú späť. Ale oveľa viac ako dekoratívny prvok interiérového dizajnu ako nosné konštrukcie. Môžete ich vidieť kdekoľvek v dome. Zvláštny prvok nábytku pripomína retro štýl – použitie tehlových stien a obytných prvkov inšpirovaných priemyslom.
Fotografie: realestate.com.au
Rezidencia 2 v 1 v Melbourne

Neutrálne pozadie – biela stena umožňuje výrazný farebný kontrast k tmavej podlahe. Kovové prvky dodávajú obytnému priestoru nádych inšpirovaný priemyslom
2 bývalé domy spojené v jednej štruktúre

Kontrastné farebné oblasti v otvorenej obývacej izbe

Dvojgeneračný dom v podkroví

Rustikálna tehlová stena a štýlové doplnky

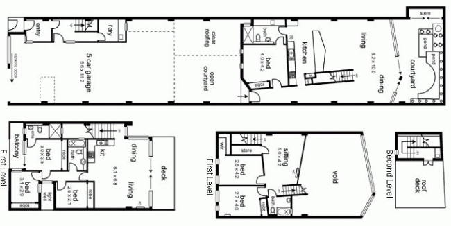
Pôdorysy domu

