Moderný dizajn obytných budov v Lime zaujme obrovskou strešnou terasou

Tento krásny Návrh bytového domu navrhol architekt Martín Dulanto v roku 2012 v peruánskej Lime. Letná vila bola postavená na dvoch poschodiach. Obzvlášť pôsobivá je obrovská strešná terasa, kde je malý bazén, jedálenský kút a dokonca aj otvorená obývacia izba.
Moderný dizajn domu s funkčným usporiadaním miestnosti

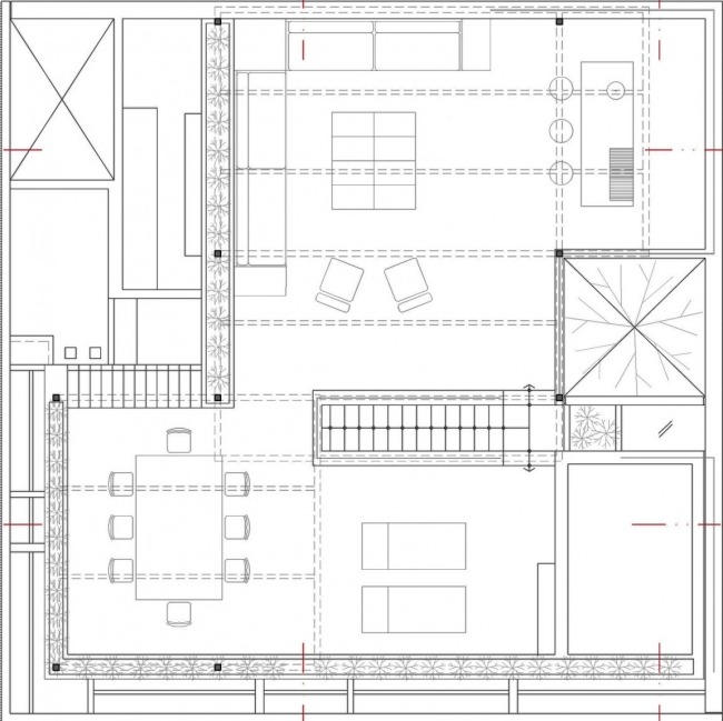
To Návrh bytového domu od Martína Dulanto zaujme nielen svojou modernou architektúrou, ale aj praktickým a funkčným usporiadaním miestnosti. V prízemí sa nachádza prekvapivo veľa izieb. Na prvom poschodí je spálňa s kúpeľňou, ďalšie tri spálne s niekoľkými lôžkami, ktoré majú tiež vlastnú kúpeľňu, priestranná obývačka s kuchyňou a jedálenským kútom a krytá terasa s rohovou sedačkou.
Dizajnová vila so záhradným nádvorím

Obývacia izba s posuvnými sklenenými dverami

Jedáleň a obývačka kombinované v jednom

Obrovská rohová sedačka pre väčšie pohodlie

Schody vyrobené z dlaždíc z prírodného kameňa

Fialové vankúše ako farebný akcent

Moderne vybavená kuchyňa


Moderný dizajn domu s obrovskou strešnou terasou a bazénom

Ten moderný Návrh bytového domu v Lime zaujme nielen svojim moderným interiérom. Obrovská strešná terasa bola navrhnutá ako samostatná obývacia izba, kde môžete stráviť mnoho hodín relaxácie. Strešná terasa bola zriadená ako multifunkčný priestor s mini bazénom, otvoreným posedením, grilom a jedálenským kútom. Strešnú terasu pokrýva drevená konštrukcia ako altánok.
Pohodlný záhradný nábytok v čiernej a bielej farbe

Moderný jedálenský nábytok na strešnej terase

Mini bazén na streche


Návrhy spální s jednoduchým interiérom



Moderný interiér kúpeľne














Fotografie Marco Símola
