minimalistický svahový dom zo Švédska

Recyklácia existujúcej nehnuteľnosti – letného domu na strmom svahu v súvislej oblasti Ingaro -Evlinge, východne od Štokholmu – bola východiskovým bodom tohto projektu. Starý Dom na úbočí V skutočnosti nezostal takmer žiadny priestor na ďalšie použitie, pretože okolo domu bol veľmi svahovitý terén. Švédskym architektom z WRB sa však podarilo majetok získať späť a vytvoriť rovinaté oblasti s dobrou slnečnou ochranou pre outdoorové aktivity. Vynikajúci ultramoderný dizajn, ako je plochá strecha a minimalistický čierny rám okien siahajúcich od podlahy až k stropu, ho otvára. Dom na úbočí.
minimalistický prázdninový dom zo Švédska

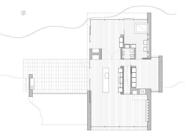
Nádherné prostredie s borovicami a vodnými cestami si skutočne príde na svoje. Budúci majitelia tohto domu s názvom Casa Barone sú mladý taliansky maliar a jeho švédska manželka. Architekti to umiestnili Dom na úbočí na severnej hranici majetku. Väčšina budovy zahrnula do stavby svah. Veľká horizontálna platforma blízko zeme ponúka krásny obývací a zábavný priestor. Polovicu tejto plošiny zaberá horné poschodie budovy, zatiaľ čo druhá polovica zostáva otvorená ako terasa spojená s kuchyňou vo vnútri..
minimalistický svahový dom – moderná architektúra zo Švédska

Obývacia časť je hneď vedľa kuchyne a vďaka vyvýšenej polohe je cez okná vidieť na vodnú cestu a v hornej polovici dva veľké duby. Je to tiež štúdio, kde vlastník domu môže pracovať na svojich projektoch a inšpirovať sa krásnym okolím. Štúdio má 50 metrov štvorcových, zatiaľ čo zvyšok domu má približne 250 metrov štvorcových, zasadených medzi sochárskymi borovicami v skalnatom svahu, moderné svieti Dom na úbočí prerazený ako zlatý chrám veľkými čiernymi oknami.




