Jewel Box v prístavbe domu v Londýne s konceptom šetrným k životnému prostrediu

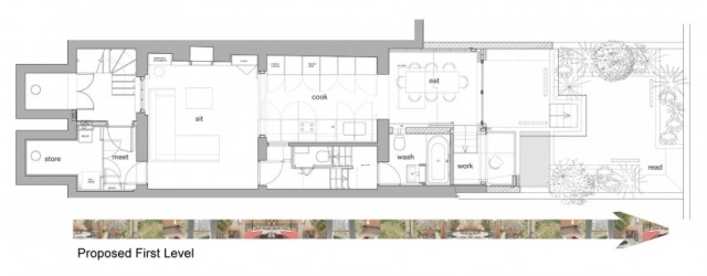
Tím architektov z Fraher Architects zaoberať sa rekonštrukciou a prístavbou obývačky jeho domu. Náročný terén by mal byť navrhnutý tak, aby bolo možné optimálne využiť vonkajšie priestory. Cez Prístavba domu Existujúca obývačka nielenže získala ďalší priestor, ale tiež sa výrazne zvýšil komfort bývania v záhrade.
Jewel Box od Fraher Architects – prístavba domu s estetickou hodnotou

Projekt 2013 mal ťažkú úlohu dať nový život pamiatkovo chránenej budove v historickej štvrti Colebrook Row pri zachovaní architektonických prvkov. Súčasný Prístavba domu bol preto bezproblémovo spojený s konkrétnym kontextom. K celkovému obrazu boli pridané 3 štruktúry inšpirované šperkovnicami. Obklad z udržateľného škótskeho smrekovcového dreva v kombinácii so super izoláciou zaisťuje príjemné teplo a dodáva domu moderný nádych.
Pamiatkovo chránená budova plná šarmu

Šperkovnice so šikmými strechami sa vyznačujú ekologickým vzhľadom – voda je vedená špeciálne vyvinutým odtokom do nádrže na dažďovú vodu a znova použitá. Zelené strechy sú navrhnuté tak, aby poskytovali biotopy divokým rastlinným druhom.
Krabička na šperky v Islingtone v Londýne

Z obývačky bol vytvorený chránený priestor s jasným výhľadom von. Okrem prístavby domu bol zrekonštruovaný aj rodinný dom s vlastným prostredím. Vonkajšie a vnútorné časti dreva a betónu určujú celkový efekt miestnosti. Dizajnový nábytok a svetlá v sochárskom vzhľade vytvárajú vizuálne napätie.
Projekt rekonštrukcie radovej zástavby

Vnútorná záhrada skrytá medzi radovými domami ponúka útulné miesto na ústup a relaxáciu, chránené pred hlukom z ulice. Na tejto úrovni je aj kancelária.
Odtiaľ sa vstupuje do vnútorného dvora so záhradou

Prístavba domu je očarujúce útulné miesto v uvoľnenej atmosfére.
Dizajnové svetlá a atraktívny dizajn strechy vytvárajú vizuálne vzrušenie

Nachádza sa tu aj veľký jedálenský stôl

Prístavba domu od Fraher Architects

Domáca kultivácia spojená s kontextom








Obrázky: Andy Matthews




