Japonská architektúra – moderný dom so strešnou terasou

Moderné japonská architektúra je štýlovým mixom japonskej tradície a západného štýlu. Súkromný priestor je v preplnenej metropole skôr luxusom. Ďalšie zariadenia, ako je napríklad vonkajšia záhrada, sú len zriedka možné. Z tohto dôvodu štúdio dizajnu a architektúry Keiji Ashizawa Design navrhlo moderný dom s jedinečnou atmosférou. Fascinujúci japonský dom so strešnou záhradou je snom jedného rodinného domu. Ale je to životný priestor tejto nádhernej budovy, ktorá sa nachádza v centre japonského hlavného mesta Tokio. postačujúce pre 2 rodiny.
Projekty japonskej architektúry – súčasný rodinný dom

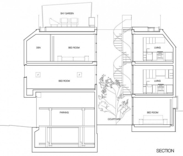
Zvláštnosťou tohto domu je krásna strešná záhrada. To japonská architektúra Project má tú výhodu, že tu máte optimálny kontakt s vonkajším svetom. Architekti očakávali, že v tomto dome môžu nerušene žiť dve rodiny. Tieto 2 rodiny by však mali dostatok súkromného priestoru vo vnútri aj na strešnej terase.
Moderná japonská architektúra – priestorovo úsporný interiérový dizajn

the japonská architektúra má dlhé tradície. Jednou z týchto tradícií je architektonické a vizuálne prepojenie vnútorného a vonkajšieho priestoru. Obývacia izba je primerane a komfortne zariadená. Dizajn – otvorený a jasný. Jednoduché línie, čisté povrchy a vstavaný nábytok pomáhajú optimalizovať priestor.
Útulná atmosféra a elegantná fasáda

the japonská architektúra prekvapte ešte kreatívnejšími riešeniami od architektov, ktoré sa neobmedzujú iba na skutočný obývací priestor. Počas svojej tvrdej práce, ktorá bola celkom náročná, architekti z Dizajn Keiji Ashizawa vždy hľadá kontakt so zákazníkmi s cieľom urobiť najlepšie rozhodnutia. Budovu navyše navrhli tak, aby do každej miestnosti prišlo dostatok svetla. Vďaka veľkým preskleným stenám sa v dome vytvorila otvorená a priestorná atmosféra.
Domová knižnica s východom na vnútorné nádvorie

Urobte interiér štýlovým v japonskom štýle

Pohodlný ratanový nábytok na krásnej strešnej terase

Strešná záhrada s výhľadom na mestskú krajinu
Kúpeľňa- moderný sprchovací kút a izbové rastliny

Nádvorie v japonskom štýle

Útulné prostredie

Plán domu v profile

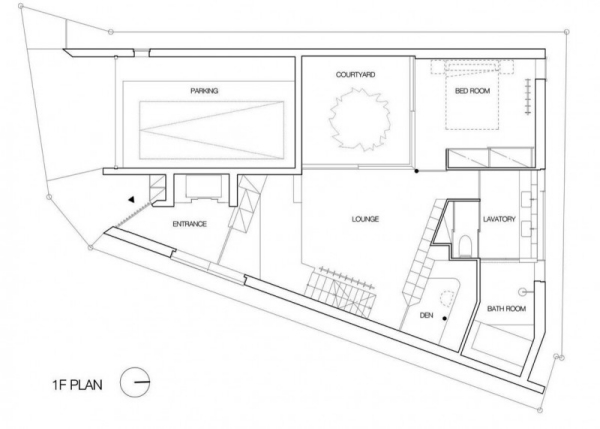
Prvý pôdorys

