Exotické rastliny v záhrade minimalistickej vily vo Vietname
Exotické rastliny dodávajú dovolenke atmosféru v záhrade minimalistickej vily vo Vietname. Rodinný dom zaujme štýlovou symbiózou klasickej stavby domu a modernej mestskej vily podkrovného charakteru. Absolútnym vrcholom je však vonkajšia časť, kde vás malá záhrada a bazén s drevenou terasou pozývajú na leňošenie. Orientácia domu umožňuje výhľad do zelene zo všetkých miestností. Vezmeme vás na virtuálnu cestu do Vietnamu. Pridajte sa k nám na prehliadku luxusnej vily od HUNI Architects.
Exotické rastliny dodávajú dovolenke atmosféru v záhrade

Klienti sa rozhodli pre moderný dom s plochou strechou so zavesenou fasádou. Keďže sa vila nachádza v husto zastavanom území, záhradu tienila vysoká záhradná stena z prírodného kameňa. Záhradná stena netieni iba vonkajší pohľad, ale aj bočne presklený obývací priestor na prízemí pred vonkajšími pohľadmi. Aby minimalistická budova nepôsobila príliš chladne a sterilne, bola záhradná stena vysadená zemným krytom. A hostí víta štýlová posteľ cezmíny a pôvodných kríkov. Rastliny dodávajú fasáde exotický nádych a uvoľňujú prísny minimalistický vzhľad.

Za vysokým múrom je krásna záhrada s jazierkom koi, sezónnymi zelenými rastlinami a stromami. Terasa so svetlými dlažobnými kockami a veľkým záhradným stolom vás pozýva na spoločenské večery vonku. Vzhľadom na obmedzený priestor sa architekti zaobišli bez trávnika a namiesto toho poskytli pestrosť kríkov rôznej výšky, okrasných tráv a stromov. Záhradná stena mizne za útulnými vždyzelenými rastlinami. Rybník s rybami koi harmonicky zapadá do záhradnej krajiny.

Exotické rastliny tiež rámujú záhradnú cestu, ktorá vedie na zadný dvor. Dizajn je typicky ázijský: kvetinám sa úplne vyhlo, ale ovocné kríky a stromy zohrávajú dôležitú úlohu. Kým niektorí exoti dodávajú vonkajším partiám svojim nádherným kvetom šplechnutie, iní vyžarujú večer príjemnú vôňu. Ďalším dôležitým záhradným prvkom, ktorý sa tradične nachádza v mnohých vietnamských záhradách, sú kamene. Či už ide o malý formát alebo väčší, ktorý púta pozornosť, kamene pôsobia veľmi dekoratívne a harmonicky zapadajú do záhradnej krajiny..

Architekti postavili drevenú terasu s bazénom nad záhradou na prízemí v prízemí, na streche terasy. Veľký bazén a vodné funkcie vás pozývajú schladiť sa v horúcich letných dňoch. Na priestrannej drevenej terase ponúkajú záhradné ležadlá možnosť relaxovať vonku a načerpať novú energiu pod slnkom. Sklenené zábradlia umožňujú ďaleký výhľad na blízky park. Stavitelia si tak môžu oddýchnuť s kokteilom v ruke po dlhom dni v práci.

Z bazéna sa môžete pozrieť aj priamo do záhrady. Ale dom je tiež navrhnutý tak, aby spálne smerovali aj k malej záhradnej oáze. Veľký baldachýn vrhá na terasu chladiace tiene. Stále existujú dva mladé stromy, ktoré tiež poskytnú tieň o niekoľko rokov.
Stavitelia môžu obdivovať nádhernú záhradu nielen zo svojich spální. Priestranný obývací priestor má veľké posuvné sklenené dvere od podlahy k stropu, ktoré sa otvárajú do záhrady. Pre Vietnam je typický aj plynulý prechod medzi vnútrom a zvonkom. Krajina má mierne a teplé podnebie, takže ľudia sú radi celoročne vonku.
Interiér je pohodlný a luxusný

Zariadenie rodinného domu nenecháva nič žiaduce. Steny a podlahu zdobia vysokokvalitné dlaždice z prírodného kameňa, kožený nábytok pozýva na odpočinok a kuchyňa je skutočným minimalistickým umeleckým dielom. Architekti sa rozhodli obmedziť zariadenie na minimum, ale prikladali veľký význam kvalite použitých materiálov. Paleta farieb je neutrálna: odtiene hnedej a zelenej vytvárajú vizuálne prepojenie medzi záhradou a obývacím priestorom, farby piesku a bielej tvoria dokonalé pozadie. Je to vila absolútnych snov, kde vládne príjemná atmosféra vnútri aj vonku.
Vonkajšia jedálenská časť ponúka výhľad na bazén

Zavesená fasáda chráni spálne pred silnými slnečnými lúčmi a cudzími ľuďmi

Návrh chodby v minimalistickom dome

Z obývacej časti je výhľad na drevenú terasu a bazén

Fasáda domu a miestnosti sú efektívne osvetlené

Dom kombinuje minimalistiku s tradičnými vietnamskými stavebnými zásadami

Stavebný plán domu: pohľad zhora

Stavebný náčrt terás

Záhrada a priestranný obývací priestor

Zo záhrady vedie schodisko na strešnú terasu

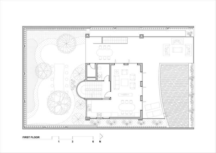
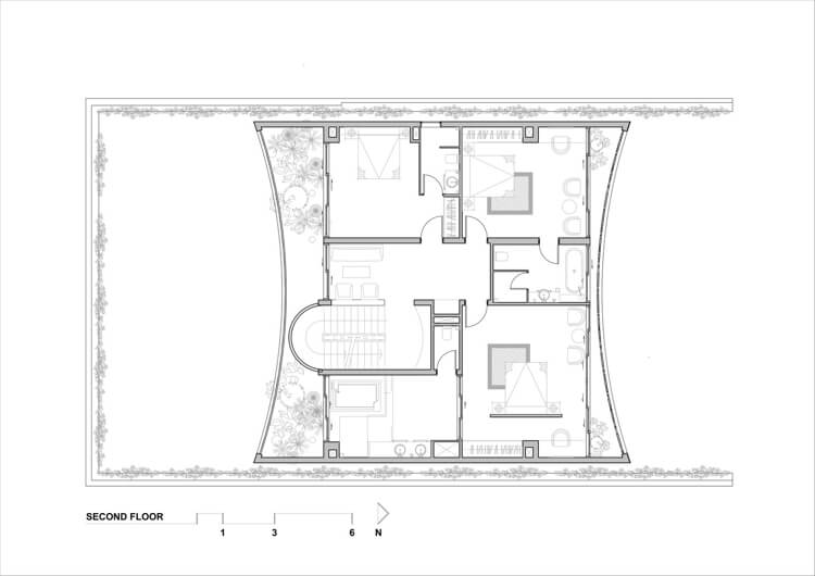
Tri spálne a tri kúpele na treťom poschodí

Rodinný dom s veľkoryso zasklenou fasádou

Plán domu s plochou strechou: Schodisko

Architektonický plán domu: kúpeľňa rodičov

Plán výstavby architektonického domu vo Vietname

Dom a susedné budovy

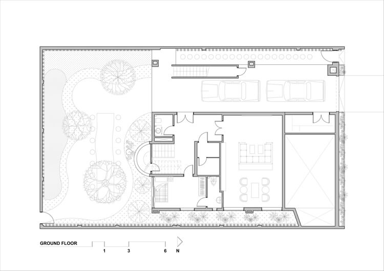
Garáž, záhrada a prízemie

