Dom z dreva s moderným dizajnom slúži ako útočisko uprostred lesa

Toto moderné Dom z dreva bol z architektonického štúdia Skombinovať projektovaný a umiestnený v Novo Mesto, Slovinsko Dom sa rozprestiera na 247,11 metroch štvorcových a bol postavený v roku 2012.
Moderný dom z dreva – umiestnenie a vonkajší dizajn

Napriek modernému dizajnu je to tak Dom z dreva na svahu uprostred lesa a dáva pocit relaxácie a pokoja. Pred domom je obrovská lúka a za ňou les. K tejto budove nevedie žiadna priama cesta, čo dokonca zvyšuje pocit súkromia.
Drevený dom bol zosúladený s konkrétnymi vlastnosťami krajiny

Práve prírodné podmienky sú dôvodom, prečo to tak je Dom z dreva orientovaný na severozápad. Návrh domu nadväzuje na povrch krajiny a nenápadne oddeľuje obývaciu a spaciu časť.
Plánovanie priestoru a návrh interiéru

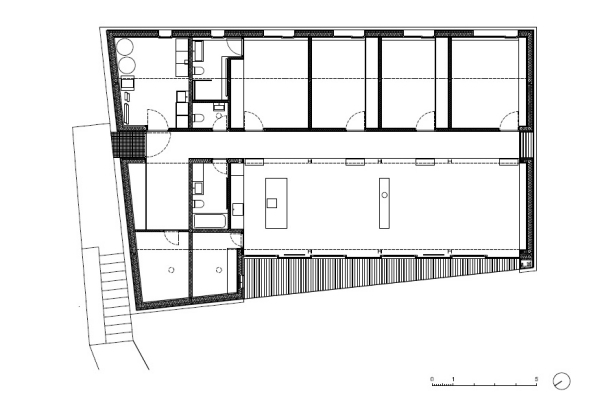
Plánovanie miestnosti vo vnútri domu sa vyznačuje hlavne veľkými otvorenými priestormi. To Dom z dreva nemá žiadne chodby a do všetkých miestností sa dostanete z úrovne poschodia. Návrh strechy bol starostlivo naplánovaný tak, aby slnečné lúče ráno osvetľovali vchod, kúpeľňu a obývaciu izbu. Vďaka fasáde s dreveným obkladom vyzerá táto moderná budova v tejto lesnej krajine prirodzene.
Moderná obývacia izba s posuvnými sklenenými dverami

minimalistická kuchyňa v bielej farbe

Fasáda s dreveným obkladom

Moderná vila v noci

Pohľad zvonku večer

Dom s geometrickými tvarmi

Architektonický plán domu

Minimalistický dom z dreva na Zürišskom jazere s jednoduchým interiérom
