Chaty v lese zo sopečného kameňa a dreva s minimalistickými tvarmi
S veľkým rešpektom k lesnej krajine vytvoril Weber Arquitectos tieto moderné a štýlové chaty v lese. Dedinský dom sa nachádza na zalesnenom pozemku vo Valle de Bravo v štáte Mexiko. Aby bola zachovaná celistvosť lokality, rezort sa rozprestiera v piatich budovách. Tieto sa perfektne usporiadajú medzi medzerami v existujúcich stromoch. Skupina zahŕňa štyri penzióny a hlavné sídlo. Všetky sú umiestnené tak, aby si hostia mohli vychutnať výhľad na zeleň a prirodzené svetlo.
Pohodlné a moderné chaty v lese

Projekt je pôsobivým príkladom súčasnej architektúry, ktorá v súčasnej dobe juhoamerickú krajinu burcuje. Elegantný dizajn a množstvo pútavých funkcií spájajú nevyhnutné pohodlie lesnej chaty a miestnych tradícií. Priaznivci modernej a praktickej architektúry z nej budú určite nadšení.

Vnútorné steny sú lemované kontrastnou zmesou silného vulkanického kameňa a teplej borovice, zatiaľ čo drevené mreže filtrujú prichádzajúce lúče. Hoci každá stavba má vlastnú terasu, vonkajšie ohniská, sedenie a ponorné bazény poskytujú spoločenské priestory, kde sa hostia môžu schádzať uprostred prírody..

Celý projekt pozostáva z piatich budov, ktoré sa rozprestierajú na ploche 5 000 metrov štvorcových, aby bol rozsiahly architektonický program čo najmenší. Architekti týmto spôsobom minimalizovali vplyvy na existujúcu vegetáciu miesta. Namiesto veľkej spoločnej stopy, ktorá si vyžiadala výrub niekoľkých stromov, sa rôzne chatrče nachádzajú v lese medzi medzerami, ktoré prirodzene existujú v strede stromov. Takýmto spôsobom môžu byť kedykoľvek integrované do architektúry.

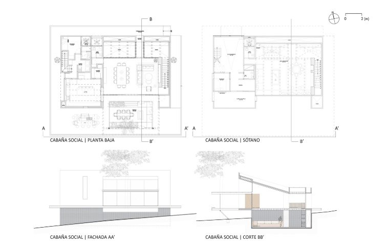
Projekt tvorí budova pre sociálne účely, štyri penzióny a hlavná budova, v ktorej sa nachádza dom zákazníka. Všetky sú orientované tak, aby ste mohli naplno využívať výhody prirodzeného svetla a naskytnúť sa im úžasný výhľad na les. Každá kajuta má navyše vlastnú terasu. Všetky kúpeľne majú vnútornú terasu s vegetáciou. Domy sa líšia objemom od miestností s nižšou výškou a sú orámované upravenými drevenými mrežami, ktoré filtrujú svetlo a ponúkajú súkromie.
Tradičná mexická architektúra s modernými prvkami

Tieto inovatívne chaty v lese majú obytnú plochu zhruba 900 m², čo ponúka veľa príležitostí na oddych a relaxáciu. Interiéry tejto obytnej nehnuteľnosti boli navrhnuté s určitým pokojom a kričia po luxusu a pokoji. Všetko je v lese asi 20 minút od jazera. Architekti sa chceli uistiť, že majú najmenší vplyv na existujúcu vegetáciu. Tým sa takzvané „kabíny San Simón“ skutočne odlišujú od konkurencie.

Všetky kajuty sú premyslene navrhnuté tak, aby obyvateľom ponúkali výnimočný výhľad na nádhernú lesnú krajinu. Na terasách si hostia môžu vychutnať teplé mexické podnebie. Interiér tohto úkrytu bol zlúčený s architektúrou, aby vytvorili príjemnú atmosféru s čistými líniami a modernými detailmi.

Z konečného výsledku je zrejmé, že architekti venovali výberu materiálov veľa plánovania a pozornosti. Sopečný kameň je jedným z vynikajúcich materiálov. Tento pokrýva steny na rozdiel od tyče a miestnych borovicových trámov. Ten tvorí štruktúru a povrchovú úpravu. Pokiaľ ide o interiérový dizajn tohto uvoľneného úkrytu, bol kombinovaný s architektúrou, ktorá sa skladá z čistých línií a pútavých súčasných detailov. Nábytok a všetky dekoratívne prvky boli tiež vybrané a navrhnuté s ohľadom na lesné prostredie.

Svetlé dubové drevo zvolené v kombinácii s ostatnými povrchmi pre celkovú estetiku dodáva celku veľmi prirodzený vzhľad. Paleta farieb je vo všeobecnosti veľmi triezva a silná. Sivé odtiene sa uplatňujú na fasádach a interiéroch, ako aj na kúpeľňovom vybavení a čiernych svetlách.
*Internetová prítomnosť architektov



























