Dom na vinici s moderným nádychom

Amsterdamská architektonická kancelária UNStudio nedávno dokončil Haus am Weinberg. Nová budova s rozlohou 6 650 metrov štvorcových sa nachádza mimo nemeckého Stuttgartu, na mieste medzi mestom a radovou vinicou.
Dom na vinici s krásnou bielou fasádou

Haus am Weinberg sa nachádza v prostredí, ktoré je vidiecke aj mestské súčasne. Poloha vily ponúka pastoračný výhľad na poschodové terasy starého vinohradu a na mesto na druhej strane.
Dom na vinici – dvor

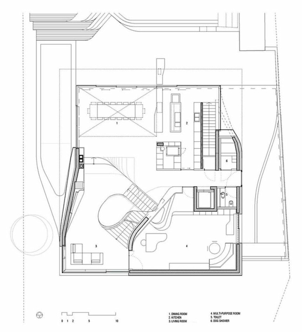
Interiérový dizajn, organizácia výhľadov a priestorové rozloženie je inšpirované jediným gestom, „obrat“. V Haus am Weinberg centrálny prvok krútenia podporuje hlavné schodisko a spája obytné oblasti. Smer každej krivky je určený diagonálnymi pohybmi. Kým dispozícia miestnosti sleduje dráhu slnka, pohľady zvonku sú integrované do interiéru. Umožňuje to nosná betónová konštrukcia, ktorá je znížená na minimum. Strechu a strop podopierajú iba štyri prvky: jadro výťahu, dve podpery a vnútorný stĺp. Veľké samonosné rozpätia vytvárajú priestor, ktorý je zasklený vo všetkých štyroch rohoch domu a bez stĺpikov.
nachádza sa na svahu

Jedáleň otvára široký výhľad na severozápad a ohraničuje vinohradnícky kopec, ktorý tvorí kulisu domu. Tento roh domu je možné úplne otvoriť posuvnými oknami, aby sa ešte viac rozmazali hranice medzi vnútorným a vonkajším priestorom. Spacie a wellness priestory sú na druhom poschodí.
Krajina a terasy

Interiér domu Haus am Weinberg je usporiadaný v miestnostiach rôznej atmosféry a priestorových vlastností, pričom štyri zasklené a otvorené rohy prepúšťajú denné svetlo hlboko do domu. V jasnej atmosfére pokračujú podlahy z prírodného duba, prírodný kameň a biele steny posiate drobnými úlomkami reflexného kameňa.
Dizajn dubových schodov

Na zdôraznenie architektúry sú tiež integrované prispôsobené funkcie a vlastnosti. Na rozdiel od svetlej témy je tu temná miestnosť venovaná hudbe, mužskej družnosti a poľovníctvu. V tejto miestnosti boli na stropy a steny použité špeciálne akustické panely z tmavého dreva.
čierna miestnosť

Strešná línia domu Haus am Weinberg reaguje na kopcovitú krajinu. Dizajn záhradného dizajnu pokračuje v uhlopriečkach pôdorysov a vytvára rôzne zóny pre odpočinok a rastliny.
priestranný biely interiér

dubové drevo

Lov trofejí


Jedálenská časť a sklenené okná



